+17
La Terrasse (38660)

Maison 7 pièce(s) 5 chambre(s) 207 m²

1
2
956 m²
590 000 €
Réf 911

LA TERRASSE - Centre du village - Située dans un environnement paisible, cette magnifique bâtisse en pierre datant de 1836 a été entièrement rénovée avec soin, alliant le cachet de l’ancien et des prestations contemporaines. D’une surface généreuse de 225 m² au sol, elle offre des volumes remarquables et une qualité de vie exceptionnelle.

Au rez-de-chaussée vous disposerez d'une vaste pièce à vivre lumineuse avec une cuisine ouverte moderne, idéale pour les moments de convivialité en famille. Un salon indépendant disposant d'un insert bois pour vos soirées au coin du feu ainsi qu'une véranda ouverte sur le jardin bénéficiant d'une vue sur le massif de Belledonne. Un espace buanderie vient compléter ce niveau.

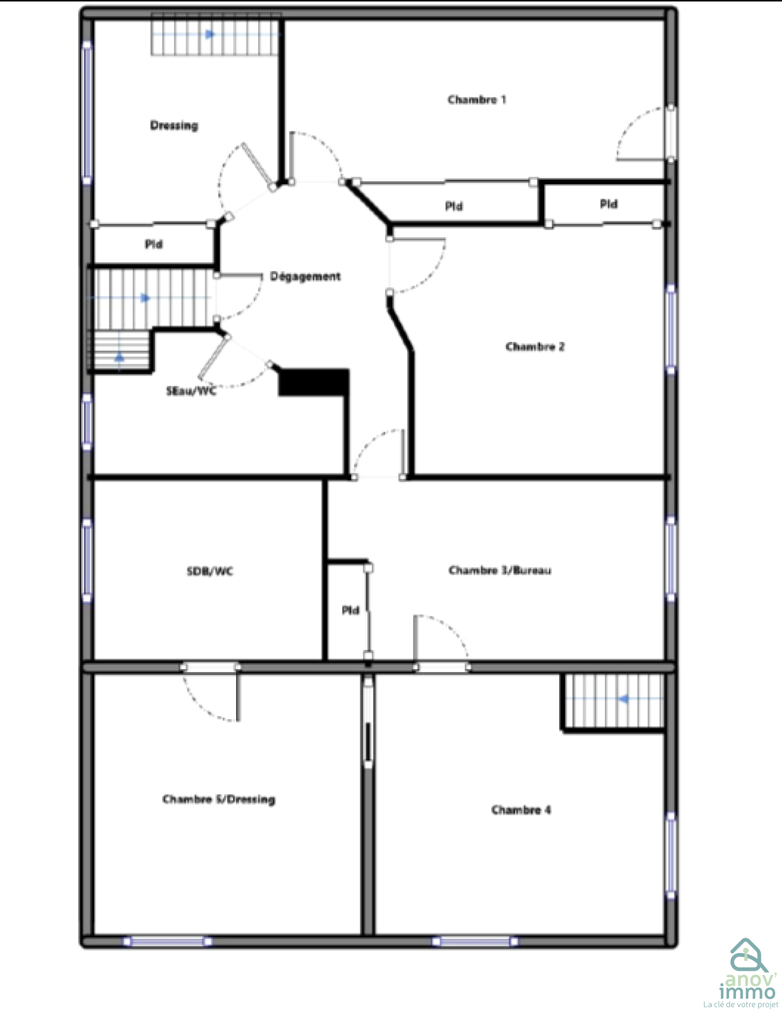
A l'étage vous profiterez de 3 belles chambres, un bureau, une salle d'eau avec WC, ainsi qu'une suite parentale d'environ 50 m² disposant d'un dressing sur mesure et d'une salle de bain privative (douche + baignoire).

Pour profiter des beaux jours dans un cadre plein de charme, vous disposerez d'un jardin arboré et clos de 956 m², d'une ancienne écurie transformée en terrasse, d'un parking fermé par un portail motorisé pour le stationnement de vos véhicules.

Pour finir, vous profiterez d'une magnifique cave voutée en sous-sol de la bâtisse ainsi qu'un grand garage de plus de 50 m².

Les informations techniques : chauffage central assuré par une chaudière à granulés de bois, ravalement de façade récent, climatisation reversible, menuiseries en double vitrage bois. Montant annuel de la taxe foncière = 2 461€.

Ne tardez pas à découvrir ce bien rare sur le marché ! Contactez-moi dès maintenant pour organiser une visite.

Annonce proposée par un agent commercial


Les informations sur les risques auxquels ce bien est exposé sont disponibles sur le site Géorisques

Bilan énergétique

Diagnostics énergetiques
Consommation énergétique
A B C D E F G
Emission de gaz à effet de serre
A B C D E F G

Montant estimé des dépenses annuelles d'énergie pour un usage standard est compris entre 3 330 € et 4 590 € . Prix moyens des énergies indexés sur les années 2021, 2022 et 2023 (abonnements compris).

A propos de ce bien Caractéristiques de ce bien
  • Surface 207 m²
  • terrain 956 m²
  • 5 chambre(s)
  • 1 salle(s) de bain
  • 2 salle(s) d'eau
  • construit en 1836
  • cuisine américaine (équipée)
  • Chauffage individuel : radiateur (granules)
  • 1 garage(s)
  • exposition Sud-Est
  • 1 côté(s) mitoyen(s)
  • 2 niveau(x)
  • vue Belledonne
  • arboré
  • piscinable

Financier

Informations financières
Prix de vente 590 000 € Les honoraires d'agence seront intégralement à la charge du vendeur
Taxe foncière annuelle 2 461 €

Simulation

Calcul des mensualités
* Champs obligatoires
Messori Agence